FPF-P1340-175
Popis
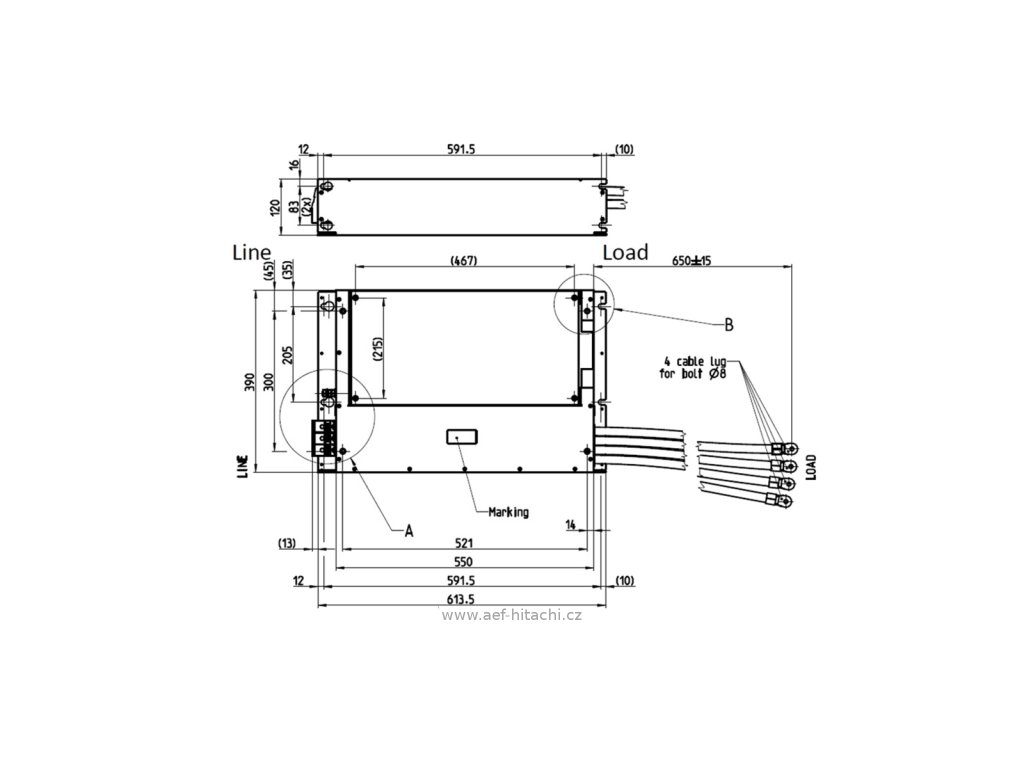
Rádiový odrušovací filtr - odrušovací filtr třídy B je dodáván v konstrukčním provedení "kniha", což umožňuje montáž pod frekvenční měnič nebo vedle měniče. Odrušovací filtr snižuje rušivé signály v radiové oblasti, které mohou produkovat frekvenční měniče.
Buďte první, kdo napíše příspěvek k této položce.
Pouze registrovaní uživatelé mohou vkládat příspěvky. Prosím přihlaste se nebo se registrujte.
